Timber Moon 38 - modulárna drevostavba

Moderná verzia ikonického modelu BRDY!

Hovorí sa, že klasika nikdy nevyjde z módy – súhlasíme! Preto pre vás máme niečo špeciálne: modernú verziu ikonického modelu Brda. Projekt vznikol na špeciálnu objednávku jedného z našich klientov, ale nám sa tak zapáčil, že ho zavádzame do našej stálej ponuky! Telo domu je inšpirované tradičnými domčekmi v škandinávskom štýle, ale vďaka moderným materiálom a veľkému preskleniu získava nový, jedinečný charakter.

Veľké okná umožňujú plné využitie prirodzeného svetla a kontakt s okolitou prírodou, vďaka čomu je interiér svetlý, priestranný a otvorený okoliu. Staviame technológiou drevostavieb, pričom používame najkvalitnejšie drevo a materiály, aby sme zabezpečili dlhú životnosť stavby. Vďaka tomu je dom ekologický, energeticky úsporný a šetrný k životnému prostrediu. Moderný dom BRDA je výbornou voľbou pre ľudí, ktorí snívajú o pohodlnom rekreačnom dome v lese, v horách alebo pri jazere.

ico klucz

dokončovacie práce na kľúč

ico linijka

30 cm hrubá vonkajšia stena

ico warstwy

8-vrstvový materiál

ico kalendarz

Čas dodania 4 týždne

ico sypialnie

mezanín

ico pokoj

1 obývacia izba

ico lozko

2-4 lôžka

ico fundament

základová doska

ico stodola

moderné brda

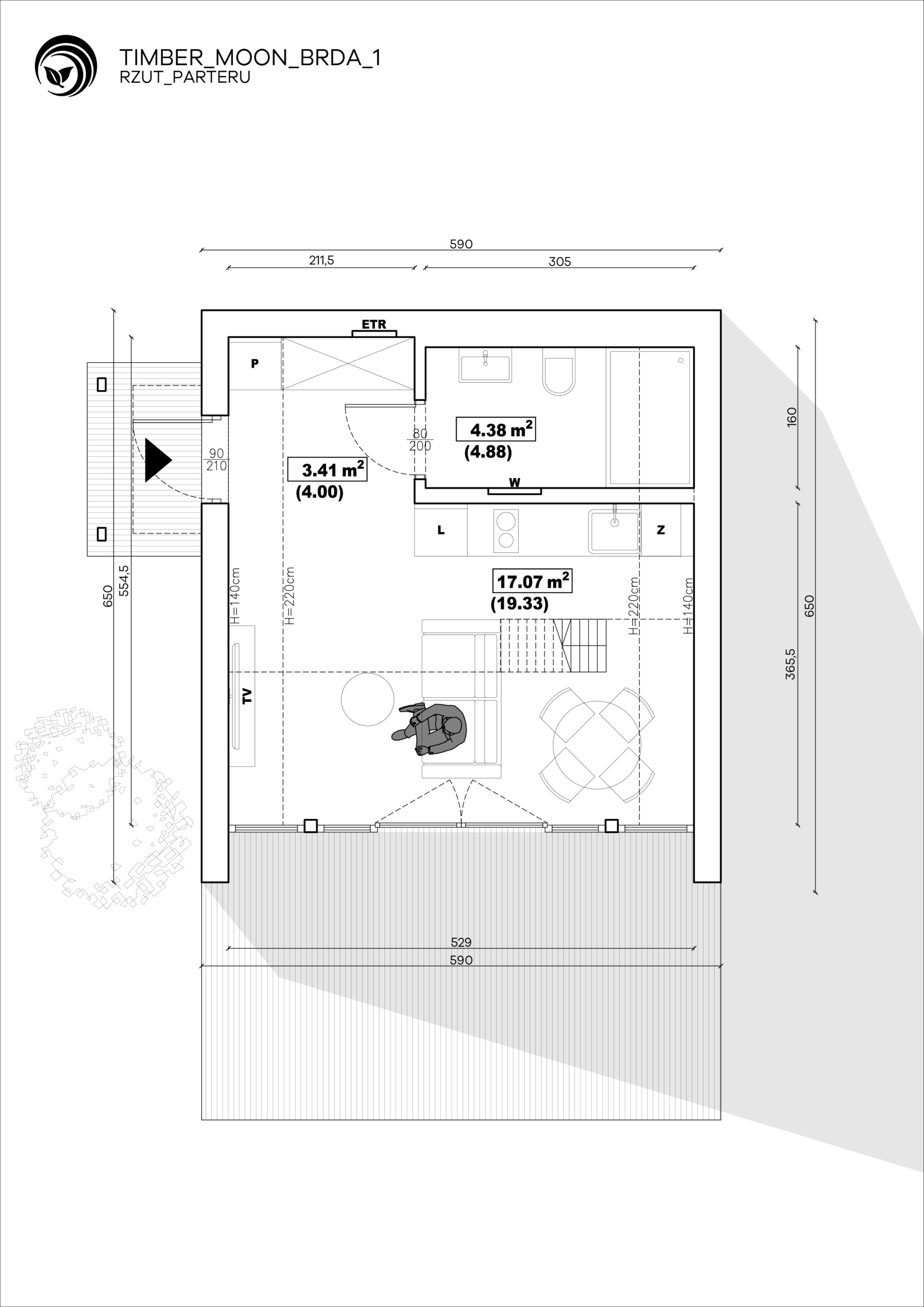
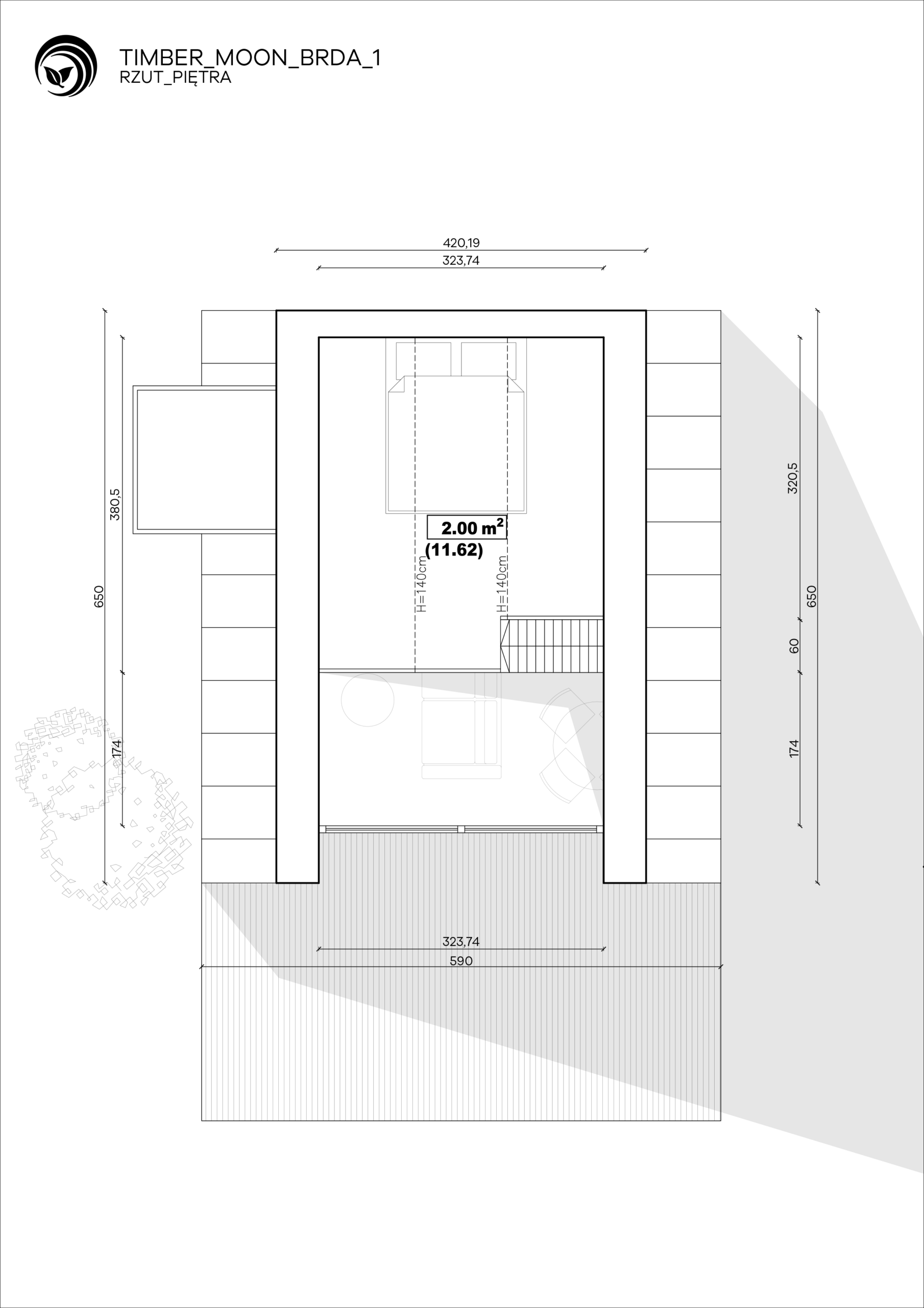
Stavebné plány

Technické špecifikácie

https://timbermoon.eu/wp-content/uploads/2025/08/ff-3.png
Vonkajšie rozmery budovy (okrem terás a verandy)
5,9 m x 6,5 m
Výška budovy po hrebeň (od úrovne terénu)
5,7m
Stavebná plocha
38 m²
Celková podlahová plocha
38 m²
Plocha prízemia
28 m²
Medziposchodie
10 m²
Výška prízemia
2,50 m
Šírka vonkajších stien
30 cm
Štandardný uhol strechy
52º

Video

Vizualizácia domu

Chcete získať bezplatnú
cenovú ponuku alebo máte nejaké otázky?

Napíšte nám a zistite viac.

cookie
Privacy Overview

This website uses cookies so that we can provide you with the best user experience possible. Cookie information is stored in your browser and performs functions such as recognising you when you return to our website and helping our team to understand which sections of the website you find most interesting and useful.