Timber Moon 200P - modulárna drevostavba

Timber Moon 200 je náš najväčší jednopodlažný model – vytvorený pre rodiny, ktoré oceňujú priestor, pohodlie a modernú architektúru. Je to dom, ktorý v sebe spája funkčnosť a výnimočný štýl a spĺňa potreby najnáročnejších užívateľov.

Veľké zasklenia nielenže poskytujú vynikajúce prirodzené svetlo do interiéru, ale zároveň otvárajú dom do záhrady a okolia, čím stierajú hranicu medzi interiérom a prírodou. Premyslené usporiadanie miestností zaručuje pohodlné každodenné bývanie – s jasne oddelenou obývacou a súkromnou časťou, veľkou kuchyňou a priestrannou obývacou izbou a množstvom úložných priestorov.

Dom Timber Moon 200 bol navrhnutý a postavený pomocou sklenenej technológie, vďaka ktorej je nielen moderný, ale aj ekologický. Drevo ako stavebný materiál je prírodná surovina s vynikajúcimi izolačnými vlastnosťami, ktoré v kombinácii s modernými technickými riešeniami umožňujú výrazne znížiť spotrebu energie. Dom spĺňa nielen vysoké ekologické štandardy, ale umožňuje aj reálne zníženie prevádzkových nákladov.

Timber Moon 200 je ideálnym domovom pre rodinu, ktorá hľadá priestor na život v harmónii – s prírodou, medzi sebou navzájom a s modernosťou. Spája v sebe výnimočnú estetiku, funkčnosť a ekologický prístup k stavbe.

ico klucz

dokončovacie práce na kľúč

ico linijka

35 cm hrubá vonkajšia stena

ico warstwy

8-vrstvový materiál

ico kalendarz

12-týždňový čas dodania

inteligentné posuvné okno

hliníková okenná stolárska výroba

ico fundament

základová doska

2-4 spálne

c (4)

1-3 kúpeľne

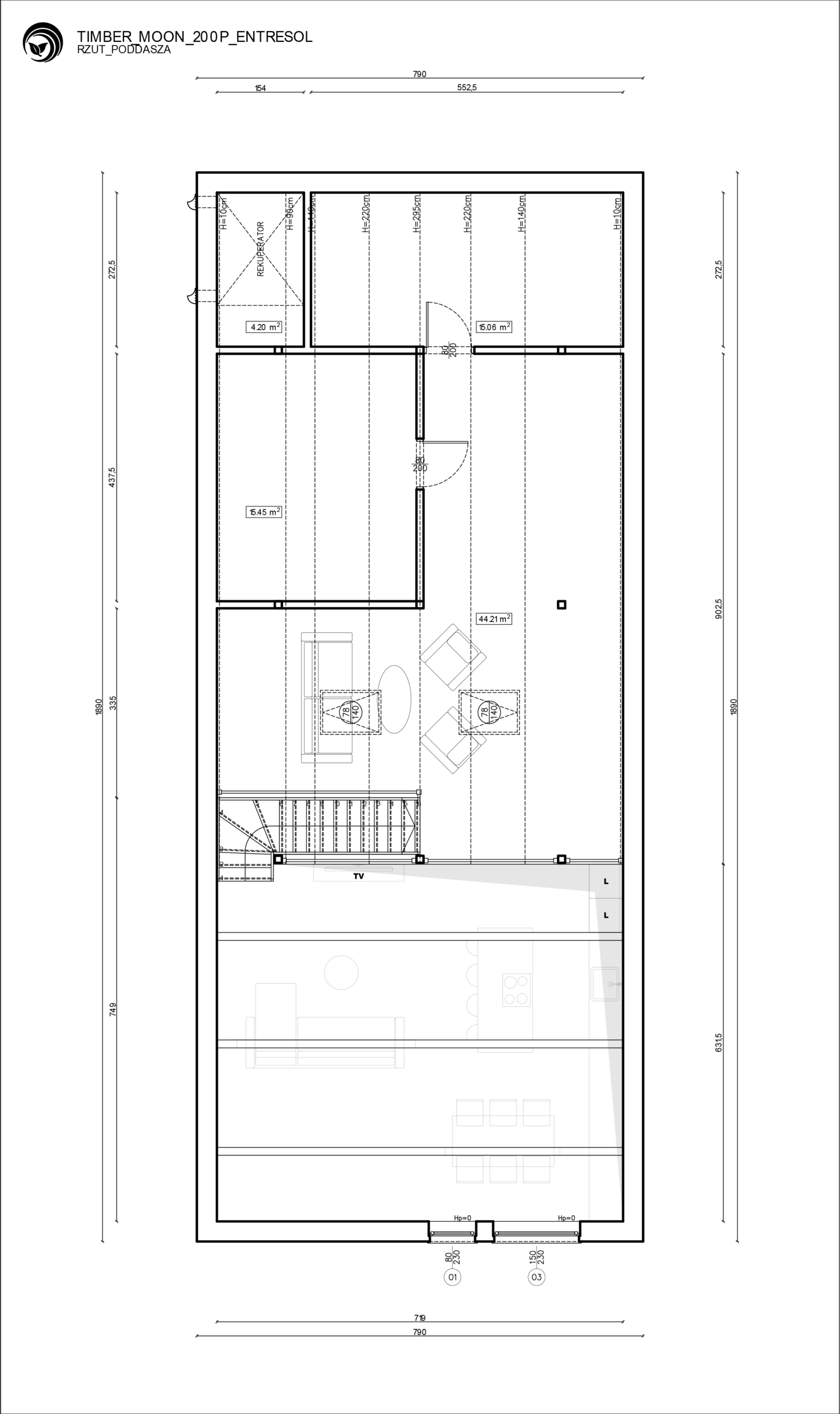
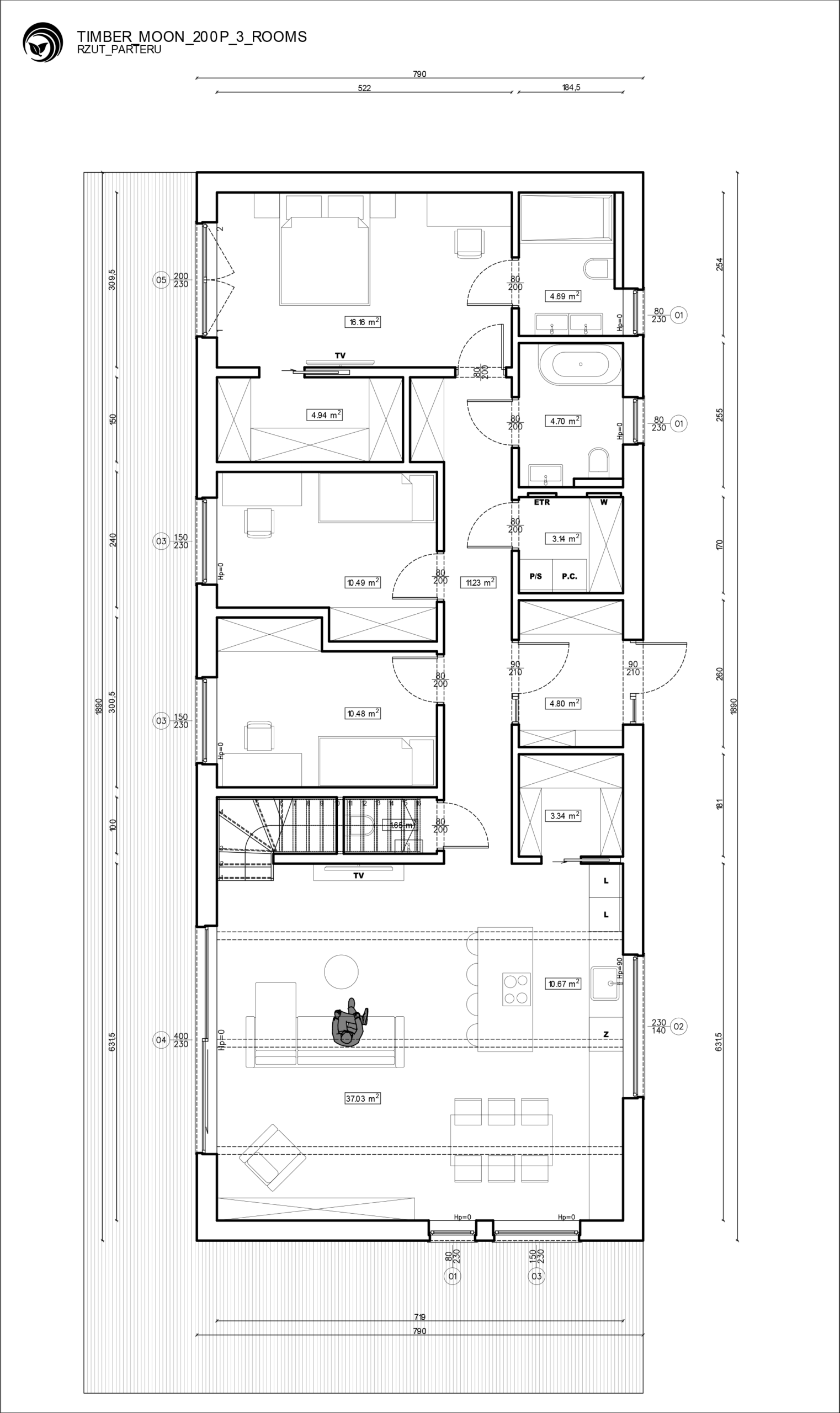
Stavebné plány

Technické špecifikácie

https://timbermoon.eu/wp-content/uploads/2025/08/ff-3.png
Vonkajšie rozmery budovy (okrem terás a verandy)
7,9 m x 18,9 m
Výška budovy po hrebeň (od úrovne terénu)
6,6 m
Stavebná plocha
150 m²
Celková podlahová plocha
200 m²
Plocha prízemia
126 m²
Výška prízemia - izby
2,6 m
Výška prízemia - obývacia izba
5,7 m
Šírka vonkajších stien
35 cm
Štandardný uhol strechy
40º

Vizualizácia domu

Chcete získať bezplatnú
cenovú ponuku alebo máte nejaké otázky?

Napíšte nám a zistite viac.

cookie
Privacy Overview

This website uses cookies so that we can provide you with the best user experience possible. Cookie information is stored in your browser and performs functions such as recognising you when you return to our website and helping our team to understand which sections of the website you find most interesting and useful.