Timber Moon 83P - modułowy dom drewniany

Parterowy dom Timber Moon 83P Standard

Dom drewniany Timber Moon 83P w wersji Standard to propozycja dla osób, które szukają wygodnego, funkcjonalnego i estetycznego domu parterowego.
To całoroczny dom szkieletowy o powierzchni zabudowy nieprzekraczającej 83 m², zaprojektowany z myślą o codziennym komforcie życia. Model ten świetnie sprawdzi się zarówno dla par, jak i rodzin, które cenią praktyczny układ pomieszczeń, nowoczesną bryłę oraz bliskość natury.

Wersja Standard to starannie przemyślana baza, która łączy wysoką jakość wykonania z prostotą i ponadczasowym stylem. Drewno wykorzystywane do konstrukcji jest naturalnym, odnawialnym surowcem, który sprzyja tworzeniu zdrowego mikroklimatu we wnętrzu. Dodatkowo bardzo dobre właściwości izolacyjne domu przekładają się na komfort termiczny przez cały rok oraz oszczędność energii.

Timber Moon 83P w wersji Standard to idealny wybór dla osób, które szukają nowoczesnego domu parterowego, łączącego funkcjonalność, ekologię i wygodę na co dzień.

ico klucz

wykończenie pod klucz

ico linijka

30 cm gr. ściany zewnętrznej

ico warstwy

8 warstwowy materiał

ico kalendarz

5 tyg. czas realizacji

ico sypialnie

2-4 sypialnie

ico pokoj

1 pokój dzienny

ico lozko

4-6 miejsc noclegowych

ico fundament

płyta fundamentowa

c (4)

1-2 łazienki

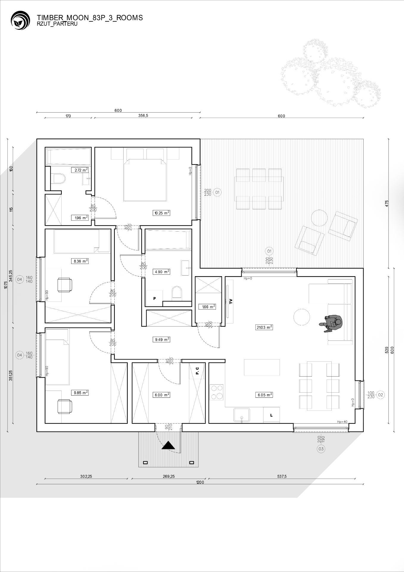
Rzuty budynku

Parametry techniczne

https://timbermoon.eu/wp-content/uploads/2025/08/ff-3.png
Wymiary zewnętrzne budynku (bez tarasów i ganków)
6,0m 10,75m ; 6,00 x 6,00
Wysokość budynku do kalenicy (od poziomu terenu)
5,60
Powierzchnia zabudowy
100 m²
Powierzchnia całkowita podłóg
83 m²
Powierzchnia podłogi parteru
83 m²
Szerokość ścian zewnętrznych
30 cm
Standardowy kąt dachu
35º

Wideo

Wizualizacja domu

Chcesz otrzymać darmową
wycenę lub masz pytania?

Napisz do nas, a odpowiemy
najszybciej, jak to możliwe

cookie
Przegląd prywatności

Ta strona korzysta z ciasteczek, aby zapewnić Ci najlepszą możliwą obsługę. Informacje o ciasteczkach są przechowywane w przeglądarce i wykonują funkcje takie jak rozpoznawanie Cię po powrocie na naszą stronę internetową i pomaganie naszemu zespołowi w zrozumieniu, które sekcje witryny są dla Ciebie najbardziej interesujące i przydatne.