Timber Moon 72 - modułowy dom drewniany

Zamieszkaj naturalnie!

Dom szkieletowy Timber Moon 72 to idealne rozwiązanie dla rodziny poszukującej komfortu i własnego miejsca do życia. Budynek oferuje funkcjonalny układ pomieszczeń, zdrowy mikroklimat i niepowtarzalny design nowoczesnej stodoły.

Drewno używane do konstrukcji, jak i wykończeń zapewnia naturalną estetykę i ciepło, nadając wnętrzu wyjątkowy urok. Budynek spełnia wszystkie normy budownictwa mieszkalnego, co oznacza, że może być użytkowany przez pokolenia.

Komfortowy metraż domu Timber Moon 72 – zapewnia wystarczającą przestrzeń dla rodziny i pozwala cieszyć się własnym domem.

Budując nasze domy modułowe szczególną uwagę przykładamy do dbałości o naturę i ekologię. Drewno, jakiego używamy jest surowcem w pełni odnawialnym  i biodegradowalnym. Dodatkowo posiada zdolność, do magazynowania CO2, przyczyniając się tym samym do zmniejszania jego emisji do środowiska naturalnego.

ico klucz

wykończenie pod klucz

ico linijka

30 cm gr. ściany zewnętrznej

ico warstwy

8 warstwowy materiał

ico kalendarz

4 tyg. czas realizacji

ico sypialnie

1-4 sypialnie

ico pokoj

1 pokój dzienny

ico lozko

6-8 miejsc noclegowych

c (4)

1-2 łazienki

ico fundament

płyta fundamentowa

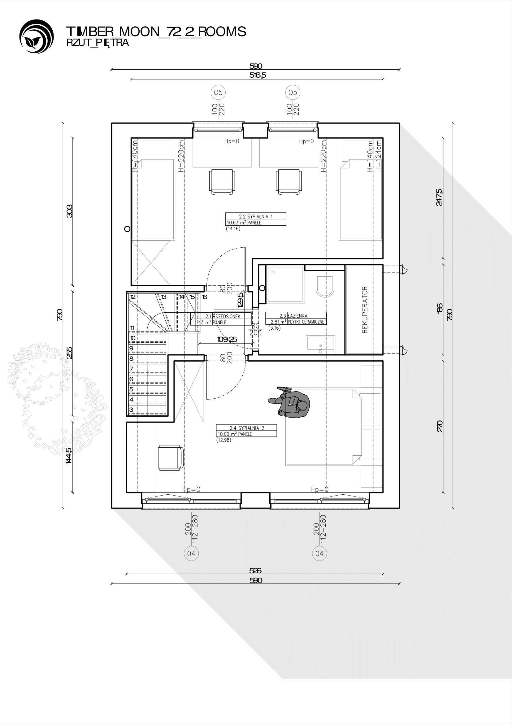
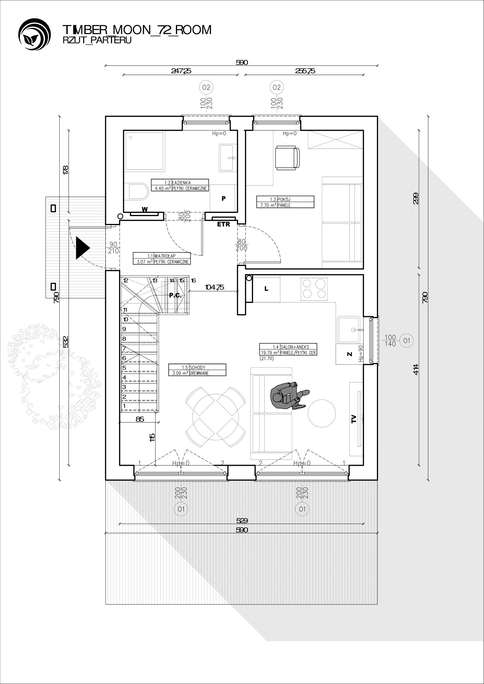
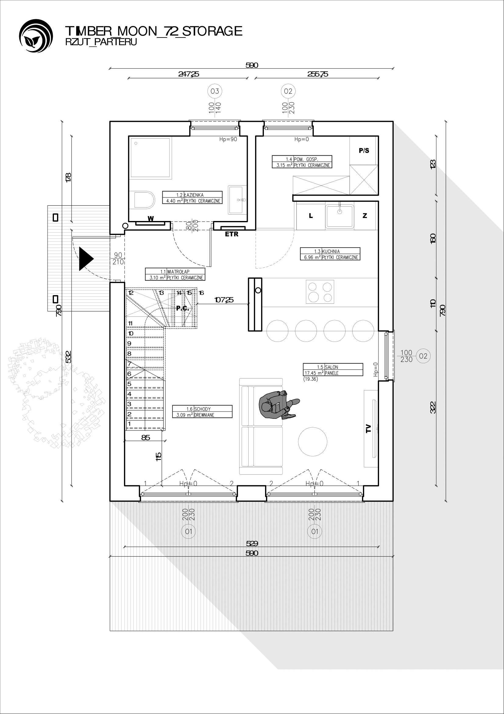
Rzuty budynku

Parametry techniczne

https://timbermoon.eu/wp-content/uploads/2025/08/ff-3.png
Wymiary zewnętrzne budynku (bez tarasów i ganków)
5,90mx7,90m
Wysokość budynku do kalenicy (od poziomu terenu)
7,30 m
Powierzchnia zabudowy
46 m2
Powierzchnia całkowita podłóg
72 m2
Powierzchnia podłogi parteru
37 m2
Wysokość parteru
2,52 m
Szerokość ścian zewnętrznych
30 cm
Standardowy kąt dachu
40º

Wizualizacja domu

Chcesz otrzymać darmową
wycenę lub masz pytania?

Napisz do nas, a odpowiemy
najszybciej, jak to możliwe

cookie
Przegląd prywatności

Ta strona korzysta z ciasteczek, aby zapewnić Ci najlepszą możliwą obsługę. Informacje o ciasteczkach są przechowywane w przeglądarce i wykonują funkcje takie jak rozpoznawanie Cię po powrocie na naszą stronę internetową i pomaganie naszemu zespołowi w zrozumieniu, które sekcje witryny są dla Ciebie najbardziej interesujące i przydatne.