Timber Moon 56 - modułowy dom drewniany

Timber Moon 56 „Kościelisko”

Ten model to efekt indywidualnego projektu stworzonego na potrzeby jednego z naszych klientów, który szukał idealnego domu na wynajem. W trakcie prac dostosowaliśmy go do obowiązujących przepisów i nadaliśmy mu bardziej podhalański charakter. Szerokie okapy z podcieniami oraz dach o kącie nachylenia 49 stopni sprawiają, że doskonale wpisuje się w górski krajobraz i świetnie sprawdza się w wymagających warunkach pogodowych.

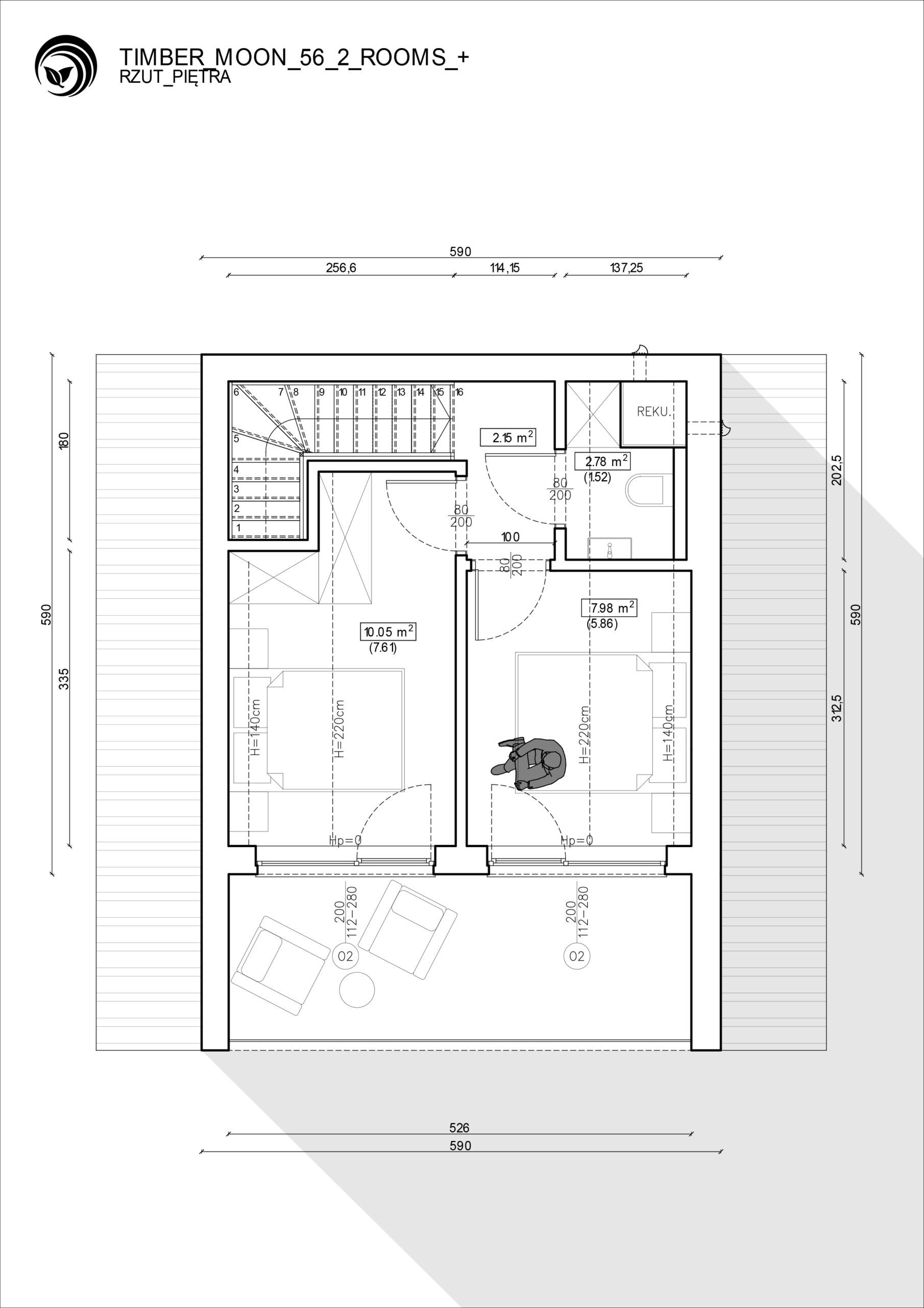
Timber Moon 56 „Kościelisko” to świetna propozycja na wynajem – zarówno krótkoterminowy, jak i długoterminowy. Układ pozwala na wydzielenie dwóch wygodnych sypialni oraz przestronnego salonu, co daje komfortową przestrzeń dla 4 do 6 osób. Dodatkowo dom zyskał przestronny taras, który jest idealnym miejscem na odpoczynek i podziwianie widoków niezależnie od pory roku.

To połączenie funkcjonalności, nowoczesnego designu i podhalańskiego klimatu – idealne dla tych, którzy szukają domu dopasowanego do górskiego otoczenia.

ico klucz

wykończenie pod klucz

ico linijka

30 cm gr. ściany zewnętrznej

ico warstwy

8 warstwowy materiał

ico kalendarz

6 tyg. czas realizacji

ico sypialnie

2 sypialnie

ico pokoj

1 pokój dzienny

ico lozko

4-6 miejsc noclegowych

ico stodola

styl podhalański

ico fundament

płyta fundamentowa

Rzuty budynku

Parametry techniczne

https://timbermoon.eu/wp-content/uploads/2025/08/ff-3.png
Wymiary zewnętrzne budynku
6,90 x 7,90 m
Wysokość budynku do kalenicy (od poziomu terenu)
7,50 m
Powierzchnia zabudowy
49 m²
Powierzchnia całkowita podłóg
54 m²
Powierzchnia podłogi parteru
28 m²
Wysokość parteru
2,6 m
Szerokość ścian zewnętrznych
30 cm
Standardowy kąt dachu
49º

Wizualizacja domu

Chcesz otrzymać darmową
wycenę lub masz pytania?

Napisz do nas, a odpowiemy
najszybciej, jak to możliwe

cookie
Przegląd prywatności

Ta strona korzysta z ciasteczek, aby zapewnić Ci najlepszą możliwą obsługę. Informacje o ciasteczkach są przechowywane w przeglądarce i wykonują funkcje takie jak rozpoznawanie Cię po powrocie na naszą stronę internetową i pomaganie naszemu zespołowi w zrozumieniu, które sekcje witryny są dla Ciebie najbardziej interesujące i przydatne.